Dodaj produkty podając kody
Dodaj plik CSV
Wpisz kody produktów, które chcesz zbiorczo dodać do koszyka (po przecinku, ze spacją lub od nowej linijki).
Powtórzenie wielokrotnie kodu, doda ten towar tyle razy ile razy występuje.
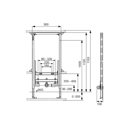
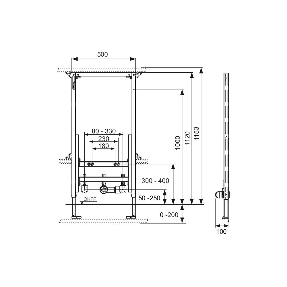
Do mocowania na kształtownikach stalowych TECEprofil lub do montażu w ścianach z profili metalowych lub drewnianych oraz jako ścianka przednia lub moduł narożnikowy.
Kompletnie zmontowana jednostka, składająca się z:
Samonośnej ramy montażowej, malowanej proszkowo i dwóch regulowanych nóżek w zakresie od 0-200 mm
Dwóch szpilek montażowych i nakrętek M 12
Przyłącza kanalizacyjnego z bezstopniową regulacją wysokości
Kolanka przyłączeniowego DN 40/50 z redukcją gumową, DN 30/50 z zatyczką ochronną
Marka
Symbol
J19330000
Seria
Rodzaj towaru
Podtynkowe systemy instalacyjne
EAN
4027255005440
Kod producenta
9330000
Regulowana wysokość
1
Wysokość [mm]
1120
Głębokość [mm]
100
Szerokość [mm]
500
Strona www producenta
www.tece.pl
Zapytaj o produkt
Napisz swoją opinię












