Dodaj produkty podając kody
Dodaj plik CSV
Wpisz kody produktów, które chcesz zbiorczo dodać do koszyka (po przecinku, ze spacją lub od nowej linijki).
Powtórzenie wielokrotnie kodu, doda ten towar tyle razy ile razy występuje.
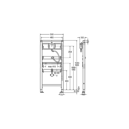
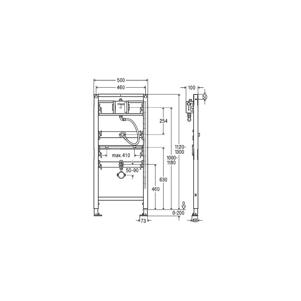
Stelaż podtynkowy do pisuaru VIEGA 8560.32, 1120 x 500 x 100 mm, regulowana wysokość, ze spłuczką ciśnieniową
Marka
Symbol
67776411
Seria
Rodzaj towaru
Podtynkowe systemy instalacyjne
EAN
4015211776411
Kod producenta
776411
Regulowana wysokość
1
Wysokość [mm]
1120
Głębokość [mm]
100
Szerokość [mm]
500
Konstrukcja samonośna
1
Z elementami mocującymi
1
Z kolanem odpływowym
1
Z elementami do mocowania pisuaru
1
Materiał
Stal
Zabezpieczenie powierzchni
Powlekanie
Przyłącze wody
Gwint wewnętrzny
Rozmiar gwintu przyłącza wody (w calach)
1/2 cala
Długość towaru w centymetrach
50
Wysokość towaru w centymetrach
11.2
Szerokość towaru w centymetrach
110
Strona www producenta
www.viega.pl
Zapytaj o produkt
Napisz swoją opinię













