Dodaj produkty podając kody
Dodaj plik CSV
Wpisz kody produktów, które chcesz zbiorczo dodać do koszyka (po przecinku, ze spacją lub od nowej linijki).
Powtórzenie wielokrotnie kodu, doda ten towar tyle razy ile razy występuje.
Hydrofor WILO Economy CO-1 MVIS 408/ER-PN10 stal nierdzewna, częstotliwość 50 Hz, prędkość 2900 obr/min, max. 10 bar
Do w pełni zautomatyzowanego zaopatrzenia w wodę i podwyższania ciśnienia w budynkach mieszkalnych, biurowych i administracyjnych, hotelach, szpitalach, domach handlowych (w zakresie obowiązywania norm DIN 1988 i DIN EN 806 należy stosować do tego celu instalacje z pompą rezerwową) oraz instalacjach przemysłowych.
Tłoczenie wody użytkowej, wody przemysłowej, wody chłodzącej, wody gaśniczej (z wyjątkiem instalacji przeciwpożarowych zgodnie z normą DIN 14462 oraz z pozwoleniem wydanym przez lokalne urzędy ds. ochrony przeciwpożarowej) lub innych rodzajów wody wykorzystywanej do konsumpcji, które nie są agresywne chemicznie lub mechanicznie dla zastosowanych materiałów i nie zawierają składników powodujących abrazję lub długowłóknistych
Cechy szczególne/zalety produktu
*Konstrukcja samoodpowietrzająca się podczas pracy
*Certyfikat WRAS/KTW dla pompy na wszystkie części mające kontakt z medium
*Pompa typoszeregu Multivert MVIS w połączeniu z bezdławnicowym silnikiem indukcyjnym trójfazowym, zapewniającym niemal bezgłośną pracę
*Do 20 dB[A] cichsze niż konwencjonalne urządzenia o porównywalnej wydajności hydraulicznej
*Części mające kontakt z medium są odporne na korozję
*Całkowicie elektroniczny regulator Economy (ER1) z elektroniką sterującą i diodami LED do wskazywania statusu urządzenia, cyfrowych wejść i wyjść
*Kontrola fabryczna i wstępne ustawienie na optymalny zakres roboczy (w tym świadectwo odbioru w oparciu o EN10204 - 3.1)
Wyposażenie/funkcja
*Wysokociśnieniowa pompa wirowa ze stali nierdzewnej typoszeregu MVIS
*Rama główna ze stali ocynkowanej elektrolitycznie z amortyzatorami drgań o regulowanej wysokości do izolacji dźwiękochłonnej
*Zawór odcinający po stronie ciśnieniowej
*Zabezpieczenie przed przepływem zwrotnym po stronie tłocznej
*Ciśnieniowe naczynie przeponowe 8 l, PN16 z armaturą przelotową wg DIN 4807, strona ciśnieniowa
*Przełącznik ciśnieniowy (6/10/16 bar), strona ciśnieniowa
*Manometr, strona ciśnieniowa
*Automatyczne sterowanie pompą za pomocą całkowicie elektronicznego urządzenia
Regulator Economy (ER) w obudowie z blachy stalowej, struktura RAL 7035, stopień ochrony IP 54, składa się z wewnętrznego układu zasilania napięciem sterującym, elektroniki sterującej i cyfrowych wejść i wyjść
Obsługa/wskazania
*W pełni elektroniczny regulator Economy (ER1) z wewnętrznym układem zasilania elektrycznego, z elektroniką sterującą, cyfrowymi wejściami i wyjściami
*Możliwość ustawiania parametrów roboczych za pomocą potencjometru, przełącznika hakowego i pokrętła
*Diody do wskazywania stanu urządzenia (praca/usterka/suchobieg)
*Ustawianie trybu pracy pompy przez przełącznik R-0-A
*Wyłącznik główny
Regulacja
*W pełni automatyczne sterowanie dwupunktowe do pomp ze stałą prędkością obrotową
*Przełączanie pompy za pomocą przełącznika ciśnieniowego w zależności od wielkości regulowanej ciśnienia (constant, p-c) lub wyłącznika pływakowego zależnie od poziomu napełnienia
*Dowolny wybór rodzaju pracy pompy (ręczy, wyłączenie, automatyczny)
*Automatyczne testowe uruchomienie pompy (okresowe uruchomienie pompy):
**Z możliwością aktywacji
**Czas między dwoma przebiegami próbnymi pompy (ok. 10 s) dziesięć godzin
*Przełącznik R-0-A (ręczny-0-automatyczny): Wstępny wybór rodzaju pracy pompy, tryb „ręczny” w razie awarii regulatora (tryb awaryjny/testowy w sieci, styki ochronne uzwojenia (silnika), reset w zależności od czasu), „0” (pompa wyłączona - nie jest możliwe dołączanie przez układ sterowania) i „Auto” (tryb automatyczny pompy aktywowany przez układ sterowania), potwierdzenie komunikatów o awarii w położeniu „0”
Kontrola
*Wewnętrzna kontrola silnika za pomocą przetwornika lub
*zewnętrzne zabezpieczenie silnika przez czujnik termistorowy (PTC) lub styk ochronny uzwojenia (WSK)
*Zabezpieczenie przewodów sieciowych pompy za pomocą bezpieczników urządzenia (bezpieczników topikowych)
*Kontrola wartości max. i min. w instalacji z ustawianym czasem opóźnienia i wartościami granicznymi
*Zabezpieczenie przed suchobiegiem za pośrednictwem styku, np. wyłącznika pływakowego lub przełącznika ciśnieniowego
*Opcjonalne zabezpieczenie przed suchobiegiem za pomocą elektrod i przekaźników poziomu
Interfejsy
*Styk bezpotencjałowy (24 V/DC, 1 A) do zbiorczej sygnalizacja awarii (SSM)
*Wejście styku zabezpieczenia przed suchobiegiem
Opcjonalne wyposażenie dodatkowe (montaż fabryczny lub późniejszy, po konsultacji technicznej)
*Zabezpieczenie przed suchobiegiem SK 277, przekaźnik poziomu SR-NW
*Przełącznik ciśnieniowy, sygnalizacja pracy
Zalecane wyposażenie dodatkowe (należy zamawiać oddzielnie)
*Opcjonalny zestaw WMS do zabezpieczenia przed suchobiegiem
*Elastyczne rurociągi podłączeniowe lub kompensatory
*Zbiornik z systemem rozdzielającym
*Ciśnieniowe naczynie przeponowe
Spełnione normy:
*DIN 1988 (EN806) - Wymagania dotyczące wewnętrznych instalacji wodociągowych do przesyłu wody przeznaczonej do spożycia przez ludzi
*DIN 4807 - Ciśnieniowe naczynia przeponowe/przeponowe naczynia wyrównawcze
*EN 50178 - Urządzenia elektroniczne do stosowania w instalacjach dużej mocy
*EN 60204-1 - Wyposażenie elektryczne maszyn
*EN 60335-1 - Bezpieczeństwo elektrycznych przyrządów do użytku domowego i podobnego
*EN 60439-1/61439-1 - Rozdzielnice i sterownice niskonapięciowe
*EN 61000-6-2 - Kompatybilność elektromagnetyczna (EMC) - Odporność w środowiskach przemysłowych
*EN 61000-6-3 - Kompatybilność elektromagnetyczna (EMC) - Norma emisji w środowiskach: mieszkalnym, handlowym i lekko uprzemysłowionym
Dane eksploatacyjne
*Liczba pomp:
*temperatura przetłaczanej cieczy: 3 oC
*temperatura otoczenia: 5 oC
*Maks. ciśnienie robocze: 10 bar
*Ciśnienie na dopływie: 6 bar
Dane silnika
*Przyłącze sieciowe:
*Znamionowa moc silnika: 2200
*Prąd znamionowy: 8,5 A
*Znamionowa prędkość obrotowa: 2900 Obroty / min
*Klasa izolacji: F
*Stopień ochrony silnika:
*Stopień ochrony urządzenia sterującego:
Materiały
*Korpus pompy: Stal nierdzewna
*Wirnik: Stal nierdzewna
*Wał: Stal nierdzewna
*Materiał uszczelnienia:
*Materiał orurowania: Stal nierdzewna
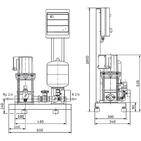
Wymiary montażowe
*Przyłącze gwintowane po stronie ssawnej: Rp 1¼
*Przyłącze gwintowane po stronie tłocznej: R 1¼
Informacje na temat umiejscowienia zamówień
*Produkt:
*Nazwa produktu: Economy CO-1 MVIS 408/ER/ (PN 10)
*Masa netto ok.: 67 kg
*Numer artykułu: 2504178
Marka
Symbol
812504178
Rodzaj towaru
Pompy do wody użytkowej
EAN
4016322527640
Kod producenta
2504178
Szerokość [mm]
340
Wysokość [mm]
990
Długość [mm]
700
Prędkość obrotowa [obr/min]
2900
Liczba pomp
1
Do wody użytkowej
1
Materiał korpusu pompy
Stal nierdzewna
Gatunek materiału korpusu pompy
Stal nierdzewna 304
Materiał rurociągu
Stal nierdzewna
Gatunek materiału rurociągu
Stal nierdzewna 316 L
Częstotliwość
50 Hz
Stopień ochrony pompy (IP)
IP44
Stopień ochrony obudowy (IP)
IP54
Klasa izolacji wg IEC
F
Prąd znamionowy [A]
8.5
Liczba faz
3
Zakres napięcia znamionowego [V]
400
Maks. ciśnienie robocze [bar]
10
Pobór mocy silnika (P1) [kW]
2.4
Moc oddawana silnika (P2) [kW]
2.2
Średnica zewnętrzna przyłącza od strony wlotowej [mm]
32
Średnica zewnętrzna przyłącza od strony wylotowej [mm]
32
Maks. wydajność (maks. przepływ) [m³/h]
8
Maks. wysokość podnoszenia [m]
84.45
Przepływ nominalny (BEP) [m³/h]
5.216
Wysokość podnoszenia przy przepływie nominalnym (BEP) [kPa]
565.06
Materiał wirnika
Stal nierdzewna
Gatunek materiału wirnika
Stal nierdzewna 304
Przyłącze od strony wlotowej
Gwint zewnętrzny gazowy walcowy
Średnica nominalna przyłącza od strony wlotowej
1 1/4 cala
Klasa ciśnienia kołnierza przyłącza wlotowego
PN 16
Rodzaj przyłącza wlotowego
ISO 228-1
Przyłącze po stronie wylotowej
Gwint zewnętrzny gazowy walcowy
Średnica nominalna przyłącza od strony wylotowej
1 1/4 cala
Klasa ciśnienia kołnierza przyłącza wylotowego
PN 16
Rodzaj przyłącza wylotowego
ISO 228-1
Kształt końcówki
Inne
Długość towaru w centymetrach
80
Wysokość towaru w centymetrach
120
Szerokość towaru w centymetrach
120
Strona www producenta
www.wilo.pl
Zapytaj o produkt
Napisz swoją opinię












