Dodaj produkty podając kody
Dodaj plik CSV
Wpisz kody produktów, które chcesz zbiorczo dodać do koszyka (po przecinku, ze spacją lub od nowej linijki).
Powtórzenie wielokrotnie kodu, doda ten towar tyle razy ile razy występuje.
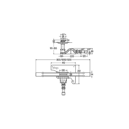
Advantix Cleviva-odpływ liniowy z wkładem Advantix Visign C1 stal nierdzewna 1.4301, nr wzoru 4981.10 L: 1200 H zab.: 95–155 DN: 40/50 wykonanie: szczotkowany
Marka
Symbol
67794484
Seria
Rodzaj towaru
Odwodnienia liniowe
EAN
4015211794484
Kod producenta
794484
Długość towaru w centymetrach
16
Wysokość towaru w centymetrach
15
Szerokość towaru w centymetrach
125
Strona www producenta
www.viega.pl
Zapytaj o produkt
Napisz swoją opinię
















