Dodaj produkty podając kody
Dodaj plik CSV
Wpisz kody produktów, które chcesz zbiorczo dodać do koszyka (po przecinku, ze spacją lub od nowej linijki).
Powtórzenie wielokrotnie kodu, doda ten towar tyle razy ile razy występuje.
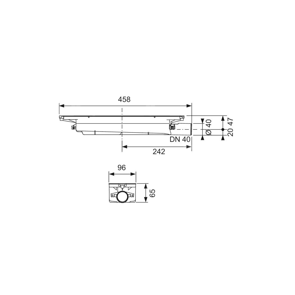
TECEdrainprofile syfon odpływowy „niski”, DN 40, odpływ boczny
Syfon odpływowy do profilu prysznicowego TECEdrainprofile, do montażu w posadzce z bocznym kolanem odpływowym DN 40. Z kołnierzem uszczelniającym Seal System do wykonywania przyłącza do uszczelnienia zespolonego zgodnego z DIN 18534
- min. wysokość montażowa 65 mm (od dolnej krawędzi odpływu do górnej krawędzi jastrychu)
- wydajność odpływowa ≥ 0,48/≥ 0,56 l/s (wg EN 1253 z wysokością spiętrzania wody 10/20 mm ponad wkładkę syfonu)
- wysokość wody stojącej 30 mm
- wyjmowane wkładki syfonu
- zintegrowany wspornik do zakotwienia w jastrychu
- kołnierz uszczelniający Seal System
- odpowiedni do prefabrykowanych taśm wygłuszających
- pokrywa ochronna na czas budowy
- ruchoma uszczelka do łączenia z profilem prysznicowym TECEdrainprofile i do wyrównania tolerancji wymiarowych
Marka
Symbol
J1673001
Seria
Rodzaj towaru
Odwodnienia liniowe
EAN
4027255061965
Kod producenta
673001
Strona www producenta
www.tece.pl
Zapytaj o produkt
Napisz swoją opinię














