Dodaj produkty podając kody
Dodaj plik CSV
Wpisz kody produktów, które chcesz zbiorczo dodać do koszyka (po przecinku, ze spacją lub od nowej linijki).
Powtórzenie wielokrotnie kodu, doda ten towar tyle razy ile razy występuje.
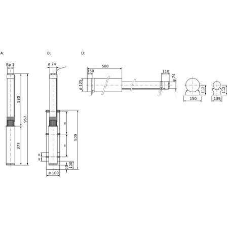
Pompa głębinowa WILO Sub TWU 3-0115 1F częstotliwość 50 Hz, moc 0.37 kW 3.75 A, prędkość obrotowa 2800 obr/min
Zakres dostawy:
*Hydraulika razem z silnikiem gotowe do instalacji
*Kabel zasilający z atestem do wody użytkowej
*Wersja na prąd zmienny włącznie ze skrzynką łączeniową z kondensatorem, termicznym zabezpieczeniem silnika oraz włącznikiem/wyłącznikiem
*Instrukcja montażu i obsługi
Dane eksploatacyjne
*Wysokość podnoszenia maks.: 45 m
Jednostka
*Przyłącze gwintowane po stronie tłocznej: Rp 1
*Maks. ciśnienie robocze: 40 bar
*Maks. zawartość piasku: 50
*Stopień ochrony silnika:
*Maks. głębokość zanurzenia: 150 m
*Min. temperatura przetłaczanej cieczy: 3 oC
*Maks. temperatura przetłaczanej cieczy: 35 oC
*Masa netto ok.: 9,3 kg
Dane silnika
*Przyłącze sieciowe:
*Znamionowa moc silnika: 370
*Znamionowa prędkość obrotowa: 2900 Obroty / min
*Prąd znamionowy: 3,75 A
*Rodzaj załączania: Bezpośrednio (D)
*Maks. częstotliwość załączania: 20
*Średnica silnika: 76,2 mm
*Min. prędkość przepływu na silniku: 0,08 m/s
Przewód
*Długość kabla zasilającego: 1,75 m
*Przekrój przewodu: 4G1,5 mm²
Materiały
*Korpus pompy: Stal nierdzewna
*Materiał silnika: Stal nierdzewna
*Wał: Stal nierdzewna
*Wirnik:
Informacje na temat umiejscowienia zamówień
*Masa netto ok.: 9,3 kg
*Produkt:
*Nazwa produktu: Sub TWU 3-0115 (1~230 V, 50 Hz)
*Numer artykułu: 4090889
Marka
Symbol
814090889
Rodzaj towaru
Pompy do wody użytkowej
EAN
4016322781837
Kod producenta
4090889
Prąd znamionowy [A]
3.75
Moc oddawana silnika (P2) [kW]
0.37
Prędkość obrotowa [obr/min]
2800
Materiał wirnika
Inne
Częstotliwość
50 Hz
Stopień ochrony (IP)
IP58
Klasa izolacji wg IEC
F
Podłączenie elektryczne
Przewód połączeniowy z wtyczką
Liczba faz
1
Zakres napięcia znamionowego [V]
230
Maks. ciśnienie robocze [bar]
5
Maksymalna liczba cykli pracy [c/h]
30
Średnica zewnętrzna przyłącza od strony wylotowej [mm]
25
Maks. wydajność (maks. przepływ) [m³/h]
2.7
Maks. wysokość podnoszenia [m]
44.23
Przepływ nominalny (BEP) [m³/h]
1.048
Wysokość podnoszenia przy przepływie nominalnym (BEP) [kPa]
377.36
Materiał korpusu pompy
Stal nierdzewna
Gatunek materiału korpusu pompy
Stal nierdzewna 304
Gatunek materiału wirnika
PVC-C
Przyłącze po stronie wylotowej
Gwint wewnętrzny gazowy stożkowy
Średnica nominalna przyłącza od strony wylotowej
1 cal
Klasa ciśnienia kołnierza przyłącza wylotowego
PN 10
Kształt końcówki
Inne
Głębokość zanurzenia [m]
60
Maks. zawartość piasku [g/m³]
50
Długość towaru w centymetrach
16
Wysokość towaru w centymetrach
12
Szerokość towaru w centymetrach
130
Strona www producenta
www.wilo.pl
Zapytaj o produkt
Napisz swoją opinię












