Dodaj produkty podając kody
Dodaj plik CSV
Wpisz kody produktów, które chcesz zbiorczo dodać do koszyka (po przecinku, ze spacją lub od nowej linijki).
Powtórzenie wielokrotnie kodu, doda ten towar tyle razy ile razy występuje.
Zastosowanie
- Stosowany w instalacjach grzewczych.
- Montowany między źródłem ciepła a rozdzielaczem ogrzewania płaszczyznowego w szafce rozdzielacza.
- Przygotowuje czynnik o odpowiedniej temperaturze i tłoczy go do pętli grzewczych rozdzielacza.
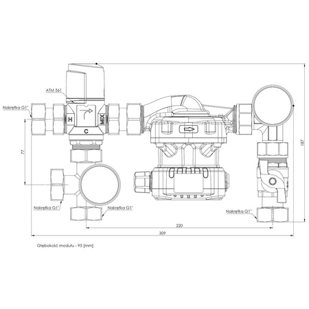
Opis
- Wyposażony w termostatyczny zawór mieszający ATM 561. Zawór utrzymuje temperaturę zasilania ustawioną na pokrętle w zakresie 20-43°C.
- Pompa obiegowa AFRISO APH 160.
- Termometry na zasilaniu i powrocie z rodzielacza kontrolują temperaturę medium.
- Zawór odcinający umożliwia odcięcie pompy obiegowej od belki zasilającej rozdzielacza.
Elementy dostawy
- Dwa wieszaki o rozstawie 220 mm do rozdzielaczy mosiężnych o przekroju belki C7.
- Komplet uszczelek.
Marka
Symbol
809050120
Rodzaj towaru
Pompy i grupy pompowe do c.o. i c.w.u.
EAN
5902510010256
Kod producenta
9050120
Wbudowana pompa obiegowa
1
Rozmiar przyłącza pompy
1 ''
Z zaworem termostatycznym
1
Długość towaru w centymetrach
415
Wysokość towaru w centymetrach
310
Szerokość towaru w centymetrach
100
Strona www producenta
www.afriso.pl
Zapytaj o produkt
Napisz swoją opinię





















